Вентиляция в кальянной
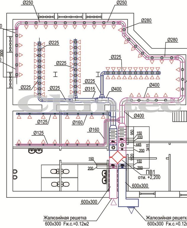
На фото изображены план двух объектов: кальянной в г. Северодонецк и кафе-кальянной в г.Харьков. Так как в помещениях данного типа необходимо обновлять и очищать большой объем воздуха. На заказ были изготовлены промышленные приточно-вытяжные установки с рекуперацией тепла, а также вся система воздуховодов.
Оба заказчика воспользовались нашей услугой "Вентиляция под ключ".
Размещение вентиляции на архитектурном плане помещения кальянной г. Северодонецк
Схема размещения точек и узлов кальянной г. Северодонецк
Размещение вентиляции в кафе-кальянной г. Харьков
Размещение вентиляции на архитектурном плане помещения кальянной г. Северодонецк
Схема размещения точек и узлов кальянной г. Северодонецк
Размещение вентиляции в кафе-кальянной г. Харьков
ТОВ "КЛІМ-ТЕК"Русланвул. 23 Серпня, 20 А, Харків, Україна
+380 (50) 867-10-85є Viber, Telegram, WhatsApp

